歡迎光臨杭州固家空間(jiān)設計有限公司網站(zhàn)
Toggle navigation
導航菜單
網站(zhàn)首頁
關(guān)于我們
公司簡介
團隊介紹
個(gè)性精裝
施工工藝
施工工藝
在建工地
成功案例
成功案例
在線留言
聯系我們
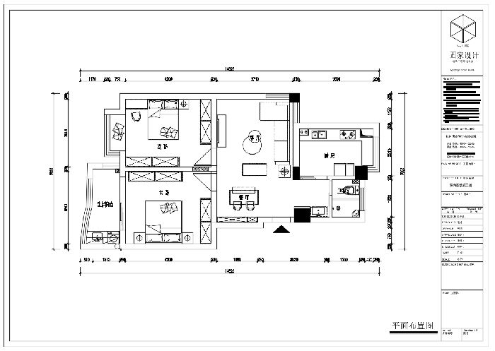
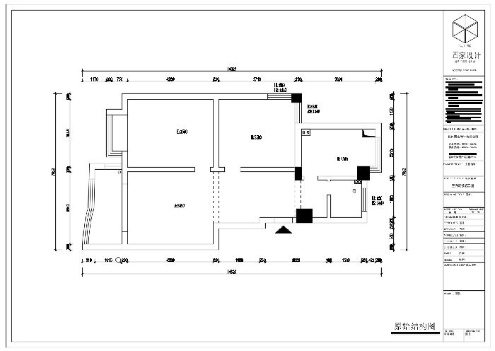
都市(shì)水鄉水映苑
水電
上(shàng)一(yī)篇:
藏龍玉墅10-2-1001
下(xià)一(yī)篇:
方正禦星9-303
成功案例
成功案例
新(xīn)聞中心
浙大網新(xīn)辦公室
[02-06]
中興和園茗馨苑
[02-06]
國風(fēng)美域
[02-06]
溫莎郡
[02-06]
凱德視(shì)界
[02-06]
聯系我們
首頁
手機
分(fēn)類
頂部